Unlock AI-powered model intelligence through natural language. Frame's AI lets you ask questions, extract insights, and generate visualizations.
Deterministic AI
Confident, reproducible answers that every stakeholder can trust.
Custom AI Tools We Design
Tailored assistants we design with your 2D BIM sheets so teams can launch work faster.
Transform your BIM workflow with natural language queries, intelligent planning, and impact analysis.
Query your BIM models with natural language.
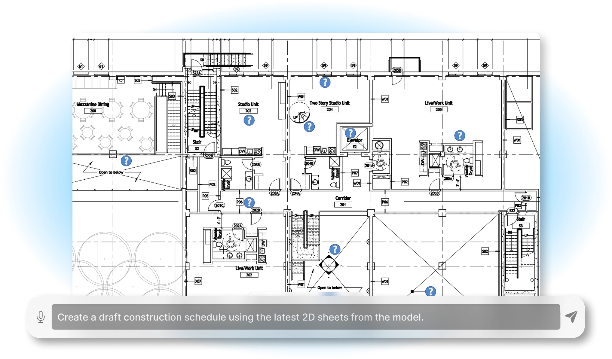
Generate scope of work and schedules from BIM models.
Analyze design changes and their impact in 3D.


Hear from industry professionals who have transformed their workflows with our BIM analytics platform.
"Frame's AI saves us hours every week. I can ask the model directly and get the answer without needing a BIM tech on call."
Infrastructure you can rely on. Support your team deserves.
The security that your mission-critical application needs.
Always-on infrastructure designed for global scale and uninterrupted access.
End-to-end encryption and secure cloud storage for your project data.
Fast SLAs and a dedicated Slack channel for expert support.
Discover the benefits of Frame today.